LFSar创意生活广场
开发商:
类型:
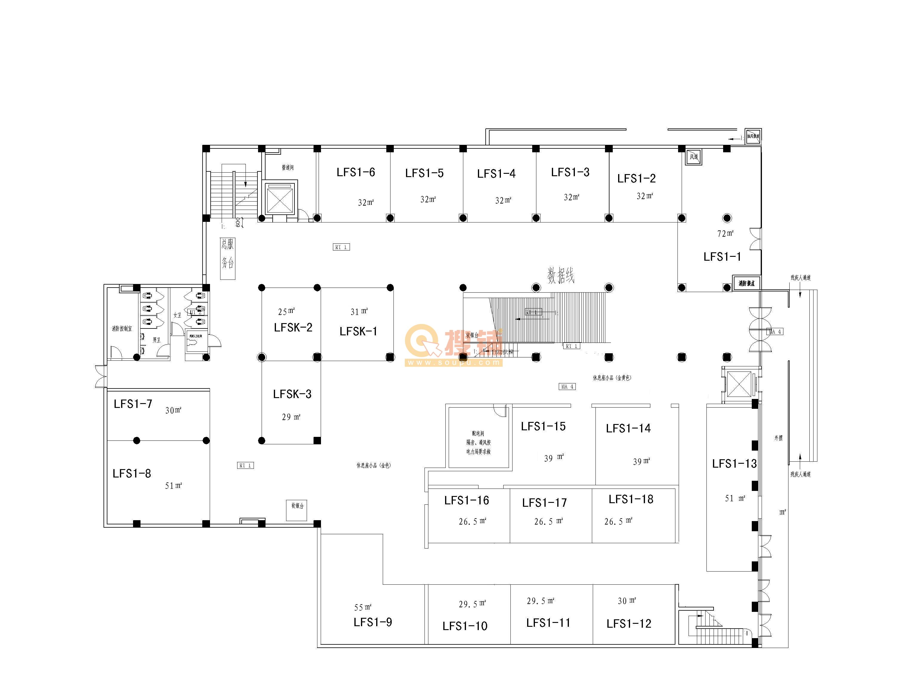
城市综合体,购物中心,商业街,商业裙楼
商业面积:
6228㎡
城市:
北京-东城区
地址:
东四北大街537号
最后更新时间:
2013年06月14日
招商需求
项目点评
招商对象
百货,化妆品,钟表,眼镜,珠宝|饰品,鞋包皮具,时尚配件,大型酒楼|美食广场,休闲餐饮|轻餐|咖啡,剧院|剧场,健身|休闲会所,培训机构,美容护理,金融|通信网店,儿童游乐
项目概况
标题:隆福寺-LFStar创意生活广场,紧邻地铁5号线、6号线
区域:东城区东二环内
价格:均价8元
发帖内容
项目周边:王府井步行街,保利艺术博物馆,北京“金色大厅”,中国美术馆等;故宫,南锣古巷,国子监,雍和宫,东直门,三里屯,银河soho等
项目位于东四成熟商业中心,3条地铁交汇(地铁5号线、6号线、未来规划8号线),可便利辐射北京各个区域
现有商业环境以沿街中低档小商业为主,除影院、剧院、美术馆、三联韬奋、中国书店、音乐吧、网吧电玩、各类餐饮外,还有美容美发、各类国内品牌服饰、外贸服饰、小商品等,形成了以文化娱乐、餐饮、美容美发、服饰为代表的四大商业群,另外周边各类快捷酒店、客栈众多。 周边已经形成了创意产业办公氛围,东城区已有多个创意文化园或产业园,除了集聚各类创意产业企业,部分已成为了旅游景点 。
本项目定位为写字楼+配套商业,地上4层、地下1层,合计建筑面积6280平米,均价8元/平米/天.
最新评论
铸星空间设计
2019-12-23 11:35:00
广东铸星装饰设计工程有限公司作为冠恒建设工程旗下的一家分公司; 于2003年正式成立,主要以室内外设计、预算、施工、材料于一体的专业化设计为主; 我们坚持:以精心为创、以品质为美,铸造星级品牌的设计及施工服务全国各地客户; 详情咨询:潘经理 13642865333。
秦出东
2019-07-10 08:13:00
【户外照明工程灯具生产商】公司承接:楼宇亮化,酒店亮化,文旅小镇亮化,商业亮化,别墅亮化,及各种大小行灯光工程联系热线、18813726315蓝经理,微信同步
2017-05-23 10:54:00
求租20-30平米 已加盟台湾乌煎道黑龙茶 有兴趣合作联系13844878866 微信同步
2017-05-17 09:51:00
求租做儿童DIY手工 电话微信同步18648509577