| 商铺类型 | 开盘时间 | 2015年5月28日 | |
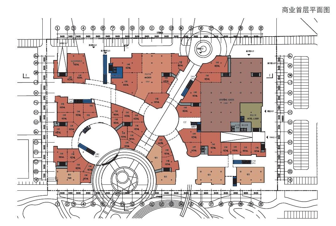
| 建筑面积 | 40000㎡ | 商铺区域 | 天津市-武清区 |
| 销售均价 | 待定 | 商铺面积 | 48-2000㎡ |
| 售铺地址 | |||
| 项目地址 | 天津市武清区广贤路与泉京路交口 | ||
| 开发商 | 天津市昊鸿翔宇投资有限公司 | ||
| 最新动态 | 武清商业15年7%固定收益 更多>> | ||
400-8620-599转888
待定












